Ανακαίνιση Ισόγειας Κατοικίας

- Ανθίμου Γαζή, Βόλος
- 70 τ.μ.
- Κατάσταση - Ολοκληρωμένη

Η κατοικία, κατασκευής δεκαετίας του ’70, ανακαινίστηκε ριζικά, ύστερα από μελέτη και με όλες τις απαραίτητες άδειες.
Η ανακαίνιση περιλάμβανε παρεμβάσεις στο εσωτερικό και τον περιβάλλοντα χώρο. Εξωτερικά, προστέθηκε επένδυση φυσικής πέτρας, που αναβάθμισε αισθητικά το σύνολο και ανέδειξε τον παραδοσιακό χαρακτήρα του κτηρίου.
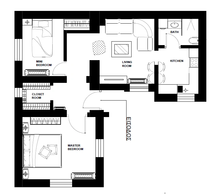
Στο εσωτερικό, ανακαινίστηκε πλήρως το μπάνιο με σύγχρονα υλικά, ενώ η κουζίνα και το σαλόνι ενοποιήθηκαν σε έναν φωτεινό, λειτουργικό χώρο με νησίδα.
Καταργήθηκαν οι δύο υπάρχουσες είσοδοι και δημιουργήθηκε μία νέα, πιο πρακτική. Προστέθηκε νέο παράθυρο και έγιναν αλλαγές στις διαστάσεις ορισμένων κουφωμάτων για καλύτερο φωτισμό και αερισμό.
Επιπλέον, δημιουργήθηκε ένα επιπλέον υπνοδωμάτιο και ένας ξεχωριστός χώρος ντουλάπας–βεστιαρίου, που ενίσχυσαν τη λειτουργικότητα και την άνεση της κατοικίας.
Τα κουφώματα αντικαταστάθηκαν με PVC σύγχρονων προδιαγραφών, ενώ τοποθετήθηκε πλακάκι σε υφή ξύλου σε όλους τους χώρους, συνδυάζοντας ζεστασιά και αντοχή.
Το αποτέλεσμα είναι μια ανανεωμένη κατοικία που διατηρεί τον χαρακτήρα της εποχής της, προσφέροντας τη λειτουργικότητα και την αισθητική ενός σύγχρονου σπιτιού.
Έχετε κάποιο Project;
Ας δουλέψουμε μαζί!
Συμπληρώστε την παρακάτω φόρμα και πείτε μας λίγα λόγια για το έργο σας
ή καλεστε στο (480) 722-1267







